Længehuset

Længehuset er med dets rektangulære form karakteriseret som en arkitektonisk perle, der passer på de fleste sommerhusgrunde. Med rummelige stuer og højt til loftet er længehuset perfekt til familier, som værdsætter et samlingspunkt med massere af plads til alle.

Skift udtryk
med bare et enkelt klik

Prøv vores Design Styler, hvor du nemt kan skifte mellem forskellige æstetiske udtryk. Skift mellem hvidsprossede og sorte vinduer, og afprøv forskellige farvekombinationer på hele sommerhuset.

Skift Træfarve
Skift Vinduesfarve

Udforsk længehuset

Se nedenstående planløsninger

Vælg træfarve
Vælg vinduesfarve

Kom indenfor

Rummeligt samlingspunkt for hele familien

Skab den rette stemning med jeres personlige touch

En af fordelene ved længehuset er det store og rummelige fællesareal, der kan fungere som samlingspunkt for hele familien. Herfra er der direkte udgang til den tilvalgte omkringliggende terrasse, så både inde- og udemiljøet kan nydes. Hos nor:houses er det afgørende at tænke og handle bæredygtigt - dette gælder lige fra vores certificerede produktion til materialer, byggemetoder og tilvalg i sommerhuset. Biopejsen eller den fuldautomatiske el-pejs kan ses som et bæredygtigt alternativ til den traditionelle pejs, der stadig ikke går på kompromis med den hyggelige stemning.

Tryk for at læse mere

luk

Stilrent design med fokus sommerhushyggen

Indret jeres drømmesommerhus

Hvis I kan fastgøre den designstil, der ønskes til jeres hjem, er I halvvejs i mål! En let tommelfingerregel er at bruge den samme stil til interiøret som husets udvendige udtryk. At finde den rette indretningsstil kan være vanskeligt. For at gøre denne process mere overskuelig har vi allieret os med forskellige indretningskonsulenter, der i fællesskab kan gøre sommerhusdrømmen til virkelighed. Som en del af processen fra idé til virkelighed tilbyder vi denne rådgivning.

Tryk for at læse mere

luk

Badeværelser i dansk design og høj kvalitet

Skræddersyede løsninger til stil og budget

Livet kræver velvære, uanset om I vil have et stort eller lille badeværelse. Derfor har HTH skabt løsninger, der kan passe til alle rum og alle budgetter. På denne måde sikrer vi, at I kan finde den løsning som passer til jeres behov. Ved at tænke bæredygtighed ind i produktudviklingen og materialevalget mindsker HTH miljøpåvirkningen samtidigt med, at kvaliteten er i højsædet.

Tryk for at læse mere

luk

Lys entre med højt til loftet

Byd jeres gæster velkommen

Det store fællesareal med direkte adgang til husets to tilvalgte overdækkede terrasser skaber rammerne for sommerhushyggen, hvor hele familien kan nyde både morgen- og aftensolen.

Tryk for at læse mere

luk

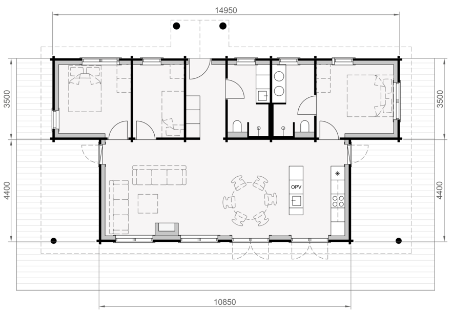
PLANTEGNINGER

Bolig Areal

80

Sovepladser

4 - 6

Bolig Areal

100

Sovepladser

5 - 7

Bolig Areal

120

Sovepladser

6 - 8

Bolig Areal

150

Sovepladser

8 - 10

Materiale- og
konstruktions beskrivelse

udvendig bolig

Geoteknik- og landmåler

Reservationer til geotekniske- og miljøprøver samt landinspektør indregnes i tilbuddet.

Fundament

Fundamenter kan udføres som stribefundamenter, afsluttet med Leca-blokke. Terrændæk af beton med armering udlægges på 200 mm isolering og evt. gulvvarmesystem.

Jordarbejde

Jordarbejde inkl. muldafrømning, udgravning af råjord, gravearbejder for stikledninger i terræn og råjord i depot på grunden - Ekskl. bortkørsel.

Tagkostruktion

Tagkonstruktion udføres som loft til kip i alle rum. Konstruktionen udføres som ventileret konstruktion, og isoleres med 260 mm glasuld, svarende til en u-værdi på 0,15 W/m2K. Udvendigt afsluttes taget med gummimembran, som monteres med muld og 2 lag rullegræs.

Råhuset

Træet stammer fra Nordisk ovntørret kvalitetstræ, som er blevet behandlet ud fra FSC2020 certificering. Alle indvendige vægge er 88x180 mm.

Ydervægge isoleres med 150 mm glasuld. Indvendige vægge opbygges af gips- eller træbeklædning, som måler 35x180 mm.

Tømrerarbejde

Træsommerhusene inkluderer nødvendig materialepakke.

Vinduer og døre

Sommerhusene kan leveres med danske Rationel Forma træ/træ vinduer, eller Formaplus træ/alu 2-lags ruder, udvendige døre samt terrassedøre med energisprosser, for at optimere energiregnskabet. Indvendige døre er Swedoor massive fyldningsdøre Compact 3.

Kloak

Kloakering udføres indvendigt til køkken og badeværelser. Udvendig kloakering inkl. biofaskine og tilslutning kan evt. udføres mod tillægspris.

Gartner og udvendige forhold

Træterrasse af fyr inkl. opbygning kan opføres mod tillægspris. Gartnerarbejde kan ligeledes medtages i entreprisen mod tillæg.

Vis mere

indvendig bolig

Køkken og inventar

Sommerhusene leveres som standard med HTH køkkenelementer i hvid eller grå, model ART med 20 mm gennemfarvet laminatbordplade. Samtlige låger og skuffer forsynes med “soft-luk”. Vand og afløbsinstallationer er ikke flytbare. Hertil er en optimeret hårdhvidevare-pakke fra Bosch inkluderet.

El-installationer

Der opsættes el-tavle med forbrugsmåler. Installationer udføres i henhold til stærkstrømsregulativet overalt som skjult installation.

Maler

Vægge behandles med et basislag og sprøjtemales 2 gange indvendigt med heldækkende maling.

Udvendige vægge sprøjtemales 2 gange med heldækkende maling. Endestykkerne males i hånden.

Ønskes sommerhusene i andre farver end standardsortimentet kan dette udføres mod tillægspris.

Badeværelse/toilet

Badeværelserne opføres med væghængt toilet IFØ-Cera med skjult cisterne. Håndvask med blandingsbatteri Børma lux A1, crom. Termostatblandebatteri Børma A2 lux brusearrangement. Gråt/hvidt HTH-skabsinventar. Bordplade af gennemfarvet laminat med lige forkant.

Keramiske gulvklinker i format 600x600 mm. I bruseniche opsættes 600x600 mm keramiske vægfliser af samme type som gulv. På alle øvrige vægflader slutmales med hvid vådrumsmaling. Bosch vaskemaskine- og tørretumbler.

VVS

Grundinstallation VVS jf. lovkrav - Køkken, badeværelse(r) inkl. 250 liters varmvandsbeholder og en udvendig vandhane.

Tilvalg

Sommerhusene kan kombineres med præsenterede tilvalg, som alle harmonerer med serien i æstetisk udtryk samt funktionalitet.

Ventelation- og varmesystem

Varmepumpe luft-luft eller tilvalgt luft-vand inkl. gulvvarmeslanger med styring støbt i fundament. Badeværelserne kan opvarmes zoneopdelt med vandbåret gulvvarmesystem styret vha. termostat og fjernfølere.

Tømrer og snedkerarbejde

Parketgulv 15x155 mm i hvidolieret larmelparket, afsluttet med fodlister i hvidmalet fyrretræ.
Fodlister & inddækninger er inkluderet.

Et samlingssted for
hele familien

Vil du holdes
opdateret løbende?

Modtag nyheder omkring sommerhusprojekter, fritidshuse, åbent hus-arrangementer og generel inspiration til sommerhuslivet. Tilmeld jer nyhedsbrevet og hold jer opdateret!

Jeg accepterer nor:houses privatlivspolitik og accepterer at modtage relevant information fra nor:houses.
FØLG OS